Обяви За нас Контакти
Продава 2-СТАЕН
град Пловдив, Тракия
87 480 €
171 096.01 лв.

(1 232 €, 2 409.58 лв./m2)
Цената е с включено ДДС
Публикувана в 16:01 на 3 февруари, 2026 год.
Обявата е посетена 56 пъти.
Площ:
71 m2
Етаж:
10-ти от 10
Строителство:
Тухла, Ще бъде въведен в експлоатация 2028 г.

Описание на имота:


🔈БЕЗ КОМИСИОН ДИРЕКТНО ОТ ИНВЕСТИТОР! 🔈 ОФЕРТА: 10968
‣ Модерен комплекс с широк избор от квадратури - От уютни едностайни до просторни многостайни жилища
‣ Изчистена архитектура , панорамни тераси и френски прозорци.
‣ Жилища на партерно ниво, които разполагат с малки дворчета - тип веранди!
‣ Висококачествени строителни материали, положени от високо компетентен екип!

👉 Разпределение:
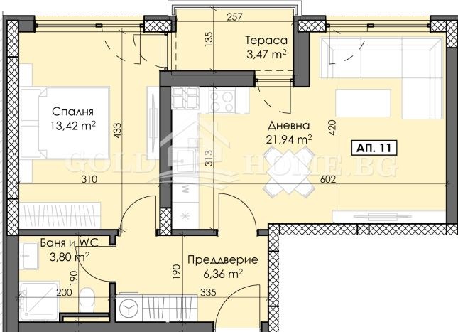
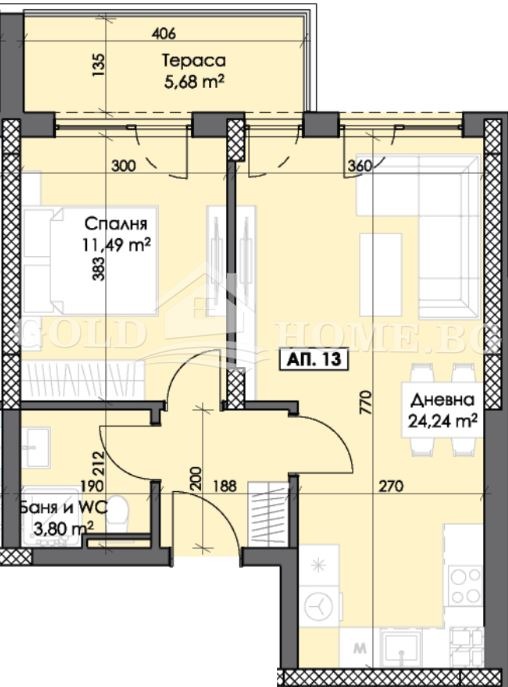
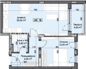
Двустайните жилища се състоят от: входно антре, дневна с кухненски бокс, спалня, баня с тоалетна, тераса и/или веранда.

Налични модули:
-71.12 кв.м. - 87 480 евро;
-61.75 кв.м - 87 093 евро;
-69.25 кв.м. - 88 640 евро;
-67.82 кв.м. - 90 878 евро;
-72.38 кв.м. - 99 160 евро;

💎Цени :
980 1190 / кв.м. с възможност за отстъпка :
‣ от 5% при заплащане на 100% от цената до АКТ 14.
‣ от -8% при заплащане на 100% до края на годината.

✔️Степен на завършеност :
● Стени и тавани гипсова бяла мазилка; под циментова замазка;
● Алуминиева дограма с двоен стъклопакет;
● Тераса гранитогрес; стени и тавани фасадна мазилка с монтирани осветителни тела; парапет по детайл;
● Входна врата блиндирана, MDF;
● Електро инсталация изградена с ел. табло, съгласно проект съоръжения с предпазители, дефектно токови защити и електромери, с монтирани ключове и контакти;
● ВиК инсталация до тапи, с монтиран водомер с дистанционно отчитане;
● ОВК изпълнена съгласно проекта, включваща изводи за външни климатични тела, позиционирани на строго определени за целта места, по едно за всеки самостоятелен обект;
● Инсталация за видеодомофон;
● Кабелна инсталация извод за кабелна телевизия и интернет;
● Фасада топлоизолация; цветна мазилка;
Общи части на сградата напълно завършени
- стълбища и площадки под гранитогрес, камък; стени и тавани гипсова мазилка и боя; електроинсталация с ключове и осветителни тела съгласно проект;
- входна врата с контрол на достъп;
- пътнически асансьори електрически;
- пощенски кутии;

🚗Паркиране :
Възможност за закупуване на подземни и надземни паркоместа и партерни и подземни гаражи.

📅 Срокове на изпълнение :
Очаква се откриване на строителната площадка. Пусков срок 36 месеца от откриване на строителната площадка.

📍Локация:
В непосредствена близост В близост до р-т 'Мавруда', Mall Plaza, хотел 'SPS', МЕТРО, училища, автобусни спирки, хранителни магазини и други удобни за Вас места!

➡️ ГОЛД ИМОТИ Ви предлага да се възползвате от професионално кредитно посредничество чрез Credit Center при ипотека, потребителски кредит и рефинансиране!
-УСЛУГАТА Е ИЗЦЯЛО БЕЗПЛАТНА!
-ИЗГОТВЯНЕ НА НЯКОЛКО ОФЕРТИ ОТ ВОДЕЩИ БАНКИ!
-НАЙ-ИЗГОДНИ УСЛОВИЯ СПРЯМО ВАШИЯТ ПРОФИЛ!
-НЕ Е НЕОБХОДИМО ДА СЕ РАЗКАРВАТЕ ВЪВ ВСЕКИ КЛОН НА РАЗЛИЧНИ БАНКИ!
➡️ Още атрактивни и актуални оферти може да разгледате на нашият сайт: www.goldhome.bg
📞 За повече информация и при интерес за оглед, моля свържете се с нас.
Особености
Тухла
Асансьор
С гараж
С паркинг
Интернет връзка
Контрол на достъпа
За контакт:
0896 706 299
Брокер:
Иван Петов
0896706299
Офис: улица '' Брезовска '' 31а
Още оферти от брокера: Продава | Дава под наем | Купува | Наема
Агенция:
ГОЛД ИМОТИ
0899143262
ГОЛД ИМОТИ logo
Медал за прослужено време
В imot.bg от 2018 г.
gold_imoti.imot.bg
Адрес:
област Пловдив, гр. Пловдив, улица '' Брезовска '' 31а
ИЗПРАТИ ЗАПИТВАНЕ
ИЗПРАТИ ЗАПИТВАНЕТО

Продава 2-СТАЕН
град Пловдив, Тракия
Обява: 1b177012728859944

87 480 €
171 096.01 лв.
(1 232 €, 2 409.58 лв./m2)

Цената е с включено ДДС
ЗАПАЗИ ОБЯВАТА

Местоположение: град Пловдив, Тракия

Допълнителни данни за имотите в района и сравнение с други райони

Покажи

Период

и 2 месеца

* Средните цени са определени чрез медианна стойност